客户案例 2025-12-09
在全球高端家电领域,Sub-Zero Group, Inc.以其旗下Sub-Zero、Wolf和Cove品牌成为制冷、烹饪及洗碗设备的行业标杆。这家成立于1945年的企业,近期通过引入SOLIDWORKS Electrical解决方案,成功打破了电气设计与机械设计之间的数据壁垒,为高端家电制造业的数字化转型提供了重要范本。
传统设计流程的痛点与挑战
在部署SOLIDWORKS Electrical之前,Sub-Zero的电气设计团队长期面临效率瓶颈。工程师需要分别在Visio、AutoCAD或SOLIDWORKS 2D中绘制电气原理图,随后手工将数据转换为线缆表、物料清单和手绘线束布局图。这种脱节的设计流程导致设计周期长达数周,且因人工操作频繁出错,常常引发返工和材料浪费。
高级设计师Isaac Semrow指出:“过去开发电气原理图、布线设计和创建BOM的流程不仅手动且脱节,严重拖慢项目进度。”首席设计工程师Jared Norgal补充道,手动流程的低效性不仅延缓研发速度,更导致意料之外的修改与成本激增。

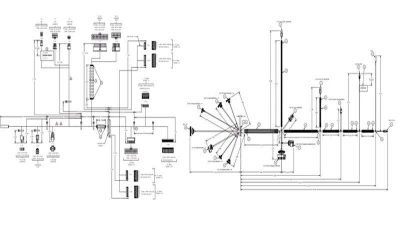
SOLIDWORKS Electrical的集成化解决方案
为应对这一挑战,Sub-Zero在现有SOLIDWORKS环境中集成了SOLIDWORKS Electrical Schematic专业版与SOLIDWORKS Electrical专业版解决方案。这一组合实现了2D电气原理图、3D机械模型和2D工程图之间的实时数据联动,构建了完整的数字化设计生态。
技术革新带来的四大核心成果
设计周期显著缩短
电气设计流程从数周压缩至高效自动化阶段,工程师可直接在集成环境中完成从原理图到制造数据的无缝传递。
线束配置优化与成本控制
通过自动生成精确的线缆表和平展配置,企业成功降低了材料采购成本,同时避免了因设计误差导致的冗余浪费。
实现零返工装配
3D模型与电气原理图的实时关联确保了设计数据的一致性,彻底消除了首次装配阶段的修改需求。
自动化文档输出
系统能够直接从电气原理图生成准确的BOM和线缆表,大幅减少了人工转录错误,提升了制造准备效率。

行业启示与未来展望
Sub-Zero的实践表明,高端家电行业通过数字化工具整合,可有效解决机械与电气设计协同的行业难题。这种集成设计方法不仅缩短了产品研发周期,更通过数据驱动提升了产品可靠性与工艺精度。
对于寻求技术升级的制造企业,Sub-Zero的转型案例印证了以下关键策略:
优先构建机械与电气设计的统一数据环境
通过自动化流程替代易出错的手工作业
以数字化工具支撑高端产品的创新迭代
随着智能家居市场的快速发展,Sub-Zero通过SOLIDWORKS集成方案建立的数字化研发体系,将持续赋能其高端厨房设备的创新进程,为行业提供可复用的技术升级路径。
通格创智是达索SolidWorks授权官方代理商,如您正在SOLIDWORKS Electrical的集成化解决方案,服务热线:400-112-8028